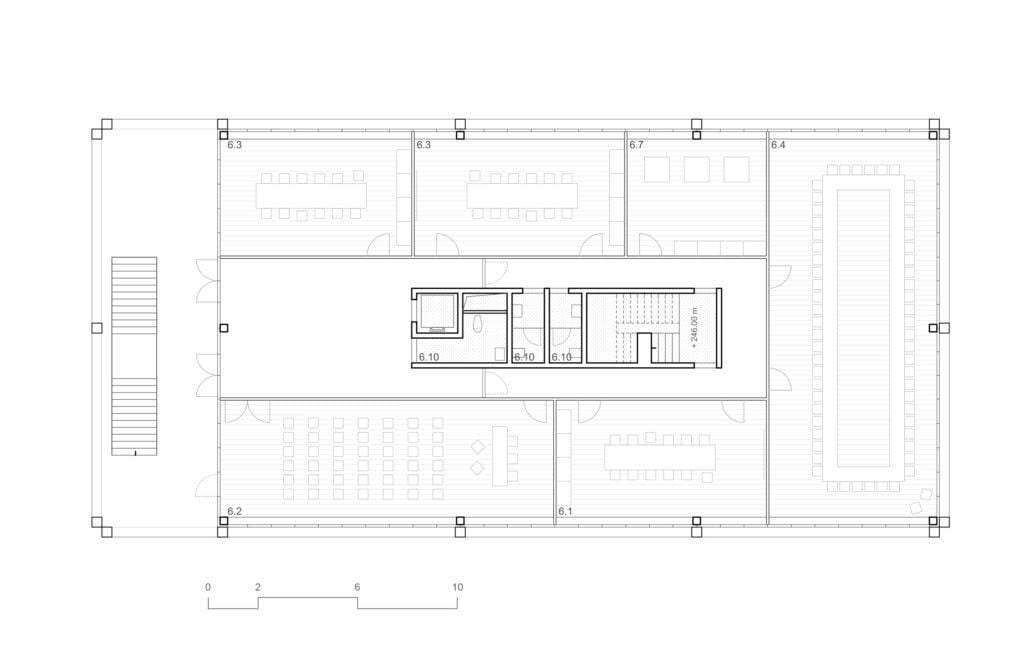
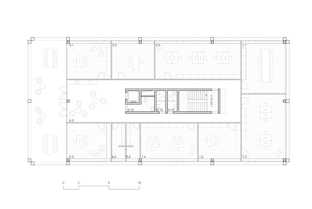
Project author: Estudio Ermolli – Gian Paolo ErmolliProject: City hallStatus: Open competitionDate: September 2019Client: Municipality of Losone, Switzerland