projects

Concorso di progetto Museo cantonale di storia naturale Locarno

Project author: Estudio Ermolli – Gian Paolo Ermolli
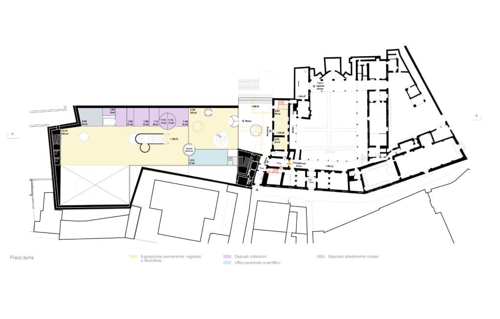
Project: Museum of Natural Sciences
Status: Open competition
Date: Luly 2022
Client: Municipality of Locarno, Switzerland