projects

Nuova biblioteca di Lorenteggio Concorso internazionale di progettazione

Project author: Estudio Ermolli – Gian Paolo Ermolli
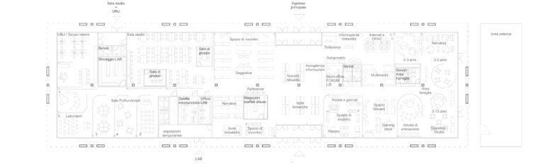
Project: Public Library
Status: Open competition_stage one
Date: February 2018
Client: Municipality of Milan